АН «Квартирный баланс» предлагает к просмотру 3-комнатную квартиру в г. Минске. Находится она по адресу ул. Розы Люксембург, д. 168/2. И дойти можно прямо от ст. м. «Грушевка», а также в сторону от пр. Дзержинского.
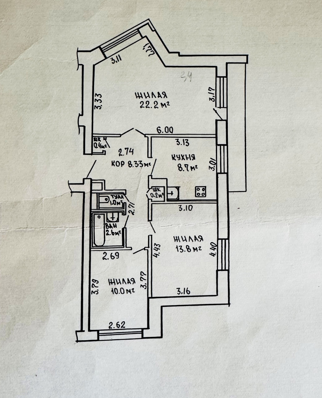
Кирпичный дом, в котором находится квартира, спроектирован по чешскому проекту. Есть 3 изолированные комнаты, соответственно каждый член семьи сможет здесь с комфортом разместиться. А просторная гостиная площадью 22 м2 с декоративным камином позволит наслаждаться семейными застольями. Рядом с домом расположен сквер, где можно гулять с друзьями или просто наслаждаться природой.
В доме всего 5 этаже, а квартира – на 3-м: настоящая «золотая середина», подъем на 3-й этаж вы даже не заметите. Построен дом в 1978 году, в 2010 году был проведен капитальный ремонт.
Обратите внимание еще на такой бонус: в квартире есть 2 кладовки, которые можно использовать для хранения.
Характеристики квартиры
- Стоимость квартиры – $112 500;
- Адрес: г. Минск, ул. Розы Люксембург, д. 168/2;
- Количество комнат – 3;
- Раздельных комнат – 3;
- Площадь общая – 67,2 м²;
- Площадь жилая – 46 м²;
- Площадь кухни – 8,7 м²;
- Высота потолков – 2,5 м;
- Балкон – застеклен, лоджия;
- Санузел – раздельный;
- Год постройки дома – 1978;
- Тип дома – кирпичный;
- Этаж / этажность – 3 / 5;
- Ремонт – хороший.
Инфраструктура и окрестности
Инфраструктура района за годы развилась и обжита, так что открытия или постройки важных локаций вам ждать не придется. Функционируют полностью:
- Детский сад;
- Школа;
- Магазины (и строится еще один прямо напротив дома);
- Банк;
- Кафе;
- Ст. м. «Грушевка» – 6 минут.
Для прогулок вы можете выбрать Сквер «Полянка», «Маломедвежинский», а уютный зеленый двор украсит вид из окна.
По вопросам покупки звоните по телефону: +375(33)680-00-91 (Дмитрий). Либо пишите нам в любой удобный мессенджер: Telegram, Viber, WhatsApp. Ведь вполне возможно, что эта квартира ждет именно вас.
Также в продаже:
- 2—комнатная квартира в г. п. Колодищи;
- 2-комнатная квартира в Новой Боровой;
- 3-комнатная квартира в Минске, пр-т Дзержинского;
- 2-комнатная квартира в Минске, ул. Алибегова;
- 1-комнатная квартира в аг. Гатово;
- 3-комнатная квартира в Минске, 2-й переулок Измайловский;
- 2-комнатная квартира в п. Привольный;
- 2-этажный дом в д. Русаково;
- 2-комнатная квартира в аг. Ратомка.



















