Продается функциональное торговое помещение площадью 59,7 м² на первом этаже жилого дома в ЖК «Минск‑Мир», по адресу: ул. Аэродромная, 32. Место подходит как для стабильного арендного бизнеса, так и для запуска собственного проекта.
Помещение имеет ряд конкурентных преимуществ: находится у крупного перекрестка, рядом с остановкой общественного транспорта и в пешей доступности от станции метро «Аэродромная». Поэтому благодаря высокому трафику и отличной видимости поток клиентов будет стабильным.
Формат полностью соответствует запросам арендаторов и малого бизнеса.
Два отдельных входа с круглосуточным доступом: удобно для разделения потоков, зонирования или работы по разным графикам. Качественный ремонт – можно начинать деятельность без дополнительных вложений. Высота потолков 3 м, естественное освещение, современная отделка.
Инженерные системы полностью готовы к эксплуатации: отопление, вентиляция, водоснабжение, кондиционирование, интернет, видеонаблюдение, пожарная и охранная сигнализации. В помещении уже работает арендатор, что позволяет рассматривать покупку как готовый инвестиционный объект с действующим доходом.
Подходит под широкий спектр форматов: магазин, шоурум, кофейня, салон услуг, офис клиентского обслуживания и другие виды коммерции.
Покупатель не оплачивает услуги агентства.
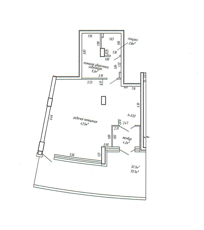
Характеристики помещения
- Стоимость – $207 000;
- Адрес: г. Минск, ул. Аэродромная, 32;
- Тип объекта – торговое помещение;
- Количество раздельных помещений – 1–2;
- Площадь общая – 59,7 м²;
- Отопление – есть;
- Электроснабжение – есть;
- Естественное освещение – есть;
- Год постройки дома – 2017;
- Этаж / этажность – 1 / 21;
- Расположение – в жилом доме;
- Ремонт – хороший.
Инфраструктура и окрестности
- Метро «Аэродромная»;
- Метро «Ковальская слобода».
- ЖК «Минск-Мир»
- Магазины;
- ТЦ Avia Mall.
Если вы хотите узнать, сколько стоит ваш дом или квартира, звоните нам в «Квартирный баланс». Для вас – бесплатная консультация! Также приглашаем к нам на День открытых дверей, который проходит каждый вторник. Там вы сможете пообщаться с агентами недвижимости в неформальной обстановке и задать любые вопросы.
Нашей главной фишкой является постоянно обновляющаяся база покупателей и новых квартир – узнавайте о новинках первыми!
По вопросам покупки этой квартиры звонить по телефону: +375(33) 680-00-14 (Артем). Либо напишите нам в удобный для вас мессенджер: Viber, Telegram, WhatsApp.





















