В престижном агрогородке вблизи Минска продается совсем новый таунхаус. Чистый и зеленый район для спокойной загородной жизни. Огороженная территория, на дорожках уложена плитка, вокруг – зеленые лужайки. Рядом с домом участок 6 соток, общая площадь 114,9 м2, а стоит таунхаус $150 000.
Для строительства использованы износостойкие качественные материалы. Сам дом идет с черновой отделкой, что дает возможность воплотить любые дизайнерские задумки. Из комнат есть выход на 2 просторные террасы: каждая площадью 9,6 м2, откуда можно наслаждаться природой.
Центральные коммуникации: газ, вода, электричество и оптоволокно. Статус земли – пожизненно–наследуемое владение. Отличный вариант как для семьи, мечтающей о собственном уютном доме, так и для инвестора, который хочет приобрести недвижимость с потенциалом.
Характеристики дома
- Цена – $150 000;
- Адрес – Минский район, аг. Острошицкий Городок, Яночкины Горы, 4;
- Тип объекта – дом;
- Площадь участка – 6 соток;
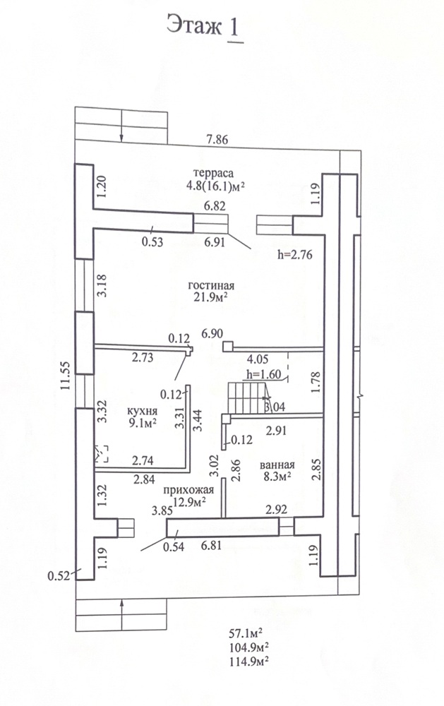
- Площадь общая – 114,9 м2;
- Площадь жилая – 57,1 м2;
- Площадь кухни – 9,1 м2;
- Уровней в доме – 2;
- Год постройки дома – 2025;
- Отопление – на газу;
- Газ – есть;
- Канализация – центральная;
- Электроснабжение – есть;
- Вода – центральный водопровод;
- Статус земли – пожизненно наследуемое владение.
Инфраструктура и окрестности
- Лес;
- Автозаправка;
- Станция зарядки электротранспорта;
- Санаторий «Прилесье»;
- Зоомагазин;
- Остановки общественного транспорта;
- Гостиница для животных;
- Школа вокала;
- Детская площадка.
Если вы хотите узнать, сколько стоит ваш дом, дача или квартира, звоните нам в «Квартирный баланс». Для вас – бесплатная консультация! Также приглашаем к нам на День открытых дверей, который проходит каждый вторник. Там вы сможете пообщаться с агентами недвижимости в неформальной обстановке и задать любые вопросы.
Нашей главной фишкой является постоянно обновляющаяся база покупателей и новых квартир – узнавайте о новинках первыми!
По вопросам покупки этого дома звонить по телефону: +375(33) 680-00-14 (Артем). Либо напишите нам в удобный для вас мессенджер: Viber, Telegram, WhatsApp.
Также в продаже:
- Дом в Хатежино ($275 000);
- Дом в г. Борисов ($210 000);
- Дом в п. Октябрьский ($108 000);
- Коттедж в п. Опытный ($299 000);
- 3-комнатная квартира, г. Борисов ($49 900);
- 3-комнатная квартира, г. Минск, ул. Розы Люксембург, д. 168/2 ($116 000);
- 1-комнатная квартира в аг. Гатово ($45 000);
- 2-комнатная квартира в аг. Ратомка ($115 000).































