Продается уютная и светлая 1-комнатная квартира – отличный вариант для тех, кто планирует купить квартиру для собственного проживания или сдачи в аренду. Общая площадь по СНБ 47,4 м2, жилая комната – 19,1 м2 , высота потолков – 2,75 м. Квартира расположена на 17 этаже 26-этажного каркасно-монолитного дома.
Из окон открывается приятный вид на прилегающую территорию, а высокий этаж обеспечивает тишину и ощущение простора. В доме работает консьерж, что добавляет комфорта и безопасности.
Квартира полностью готова к проживанию или сдаче в аренду: выполнен ремонт, разведена электрика, установлена надежная сантехника, на полу – ламинат, входная металлическая дверь. В жилой комнате – грамотное зонирование спальной и гостиной зон, оформлена ТВ-зона – практичное решение для тех, кто хочет купить однокомнатную квартиру с максимально функциональной планировкой.
Отличное транспортное сообщение делает эту квартиру особенно привлекательной: остановка находится в минуте ходьбы, а до станции метро «Каменная горка» – всего 5 минут. Есть удобный выезд на МКАД, что позволяет добраться в любую часть города или быстро выехать на природу.
Хотим обратить внимание, что уже подобран встречный вариант, так что выход на сделку пройдет максимально оперативно.
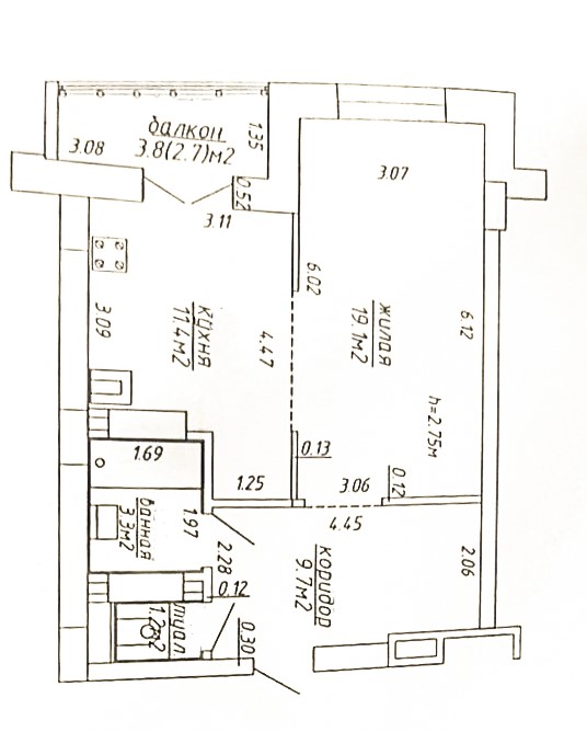
Характеристики квартиры
- Стоимость квартиры — $102 900;
- Адрес: г. Минск, ул. Неманская, 6;
- Количество комнат — 1;
- Площадь общая — 44,7 м²;
- Площадь жилая — 19,1 м²;
- Площадь кухни — 11,4 м²;
- Высота потолков — 2,75 м;
- Балкон — лоджия;
- Площадь балкона — 2,7 м²;
- Год постройки дома — 2011;
- Этаж / этажность — 17 / 26;
- Тип дома — каркасно-блочный;
- Санузел — раздельный.
Инфраструктура и окрестности
- Метро «Каменная горка»;
- МКАД;
- Остановки общественного транспорта;
- Парк «Семейное дерево»;
- ТЦ «Green City»;
- Медицинская лаборатория
- Гимназия, школа, детский сад;
- Поликлиника;
- Почта;
- Банк.
Если вы хотите узнать, сколько стоит ваш дом или квартира, звоните нам в «Квартирный баланс». Для вас – бесплатная консультация! Также приглашаем к нам на День открытых дверей, который проходит каждый вторник. Там вы сможете пообщаться с агентами недвижимости в неформальной обстановке и задать любые вопросы.
Нашей главной фишкой является постоянно обновляющаяся база покупателей и новых квартир – узнавайте о новинках первыми!
По вопросам покупки звонить по телефону: +375(33) 680-00-94 (Юлия). Либо напишите нам в удобный для вас мессенджер: Viber, Telegram, WhatsApp.





















